Caren Peare stands on a snowbank along Hemlock Lane at the site of the future Kevin Peare Memorial Skate Park in North Conway on Feb. 19. (RACHEL SHARPLES PHOTO)
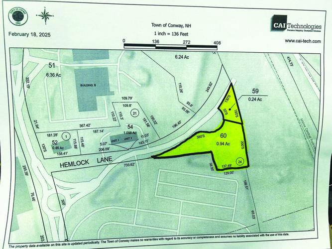
The highlighted area of this map of North Conway shows the proposed new location of the Kevin Peare Memorial Skatepark. (TOWN OF CONWAY IMAGE)
Caren Peare stands on a snowbank along Hemlock Lane at the site of the future Kevin Peare Memorial Skate Park in North Conway on Feb. 19. (RACHEL SHARPLES PHOTO)
CONWAY — A possible new location for the Kevin Peare Memorial Skate Park was announced by Town Manager John Eastman on Tuesday.
The skate park had been planned to be built on state-owned land off Hemlock Lane that was going to be transferred to the town. However, this plan was waylaid by a lawsuit from Jim Pietrangelo of Bartlett, which he filed last May.
Keep it Clean. Please avoid obscene, vulgar, lewd,
racist or sexually-oriented language. PLEASE TURN OFF YOUR CAPS LOCK. Don't Threaten. Threats of harming another
person will not be tolerated. Be Truthful. Don't knowingly lie about anyone
or anything. Be Nice. No racism, sexism or any sort of -ism
that is degrading to another person. Be Proactive. Use the 'Report' link on
each comment to let us know of abusive posts. Share with Us. We'd love to hear eyewitness
accounts, the history behind an article.
(0) comments
Welcome to the discussion.
Log In
Keep it Clean. Please avoid obscene, vulgar, lewd, racist or sexually-oriented language.
PLEASE TURN OFF YOUR CAPS LOCK.
Don't Threaten. Threats of harming another person will not be tolerated.
Be Truthful. Don't knowingly lie about anyone or anything.
Be Nice. No racism, sexism or any sort of -ism that is degrading to another person.
Be Proactive. Use the 'Report' link on each comment to let us know of abusive posts.
Share with Us. We'd love to hear eyewitness accounts, the history behind an article.