Settlers Green developer Robert Barsamian received a special exception and variance from the Conway Zoning Board of Adjustment in October for a 20-unit apartment complex and 45-seat restaurant just south of DQ Grill and Chill at 549 White Mountian Highway. (COURTESY RENDERING)
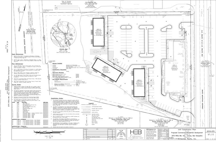
The Conway Planning Board in June unanimously gave conditional approval to a proposal by Whitesides Realty Inc. to create a 34-apartment, three-building complex behind the commercial building that houses the Via Roma restaurant at 2076 White Mountain Highway in North Conway. (COURTESY OF HEB ENGINEERS)
Settlers Green developer Robert Barsamian received a special exception and variance from the Conway Zoning Board of Adjustment in October for a 20-unit apartment complex and 45-seat restaurant just south of DQ Grill and Chill at 549 White Mountian Highway. (COURTESY RENDERING)
The Conway Planning Board in June unanimously gave conditional approval to a proposal by Whitesides Realty Inc. to create a 34-apartment, three-building complex behind the commercial building that houses the Via Roma restaurant at 2076 White Mountain Highway in North Conway. (COURTESY OF HEB ENGINEERS)
CONWAY — While Avesta Housing undertakes the process of developing workforce and senior housing near Tech Village, there are several other housing initiatives underway, said Victoria Laracy, executive director of the Mt. Washington Valley Housing Coalition.
And with a local rental vacancy rate of under 1 percent, those initiatives are critically important.
Keep it Clean. Please avoid obscene, vulgar, lewd,
racist or sexually-oriented language. PLEASE TURN OFF YOUR CAPS LOCK. Don't Threaten. Threats of harming another
person will not be tolerated. Be Truthful. Don't knowingly lie about anyone
or anything. Be Nice. No racism, sexism or any sort of -ism
that is degrading to another person. Be Proactive. Use the 'Report' link on
each comment to let us know of abusive posts. Share with Us. We'd love to hear eyewitness
accounts, the history behind an article.
(0) comments
Welcome to the discussion.
Log In
Keep it Clean. Please avoid obscene, vulgar, lewd, racist or sexually-oriented language.
PLEASE TURN OFF YOUR CAPS LOCK.
Don't Threaten. Threats of harming another person will not be tolerated.
Be Truthful. Don't knowingly lie about anyone or anything.
Be Nice. No racism, sexism or any sort of -ism that is degrading to another person.
Be Proactive. Use the 'Report' link on each comment to let us know of abusive posts.
Share with Us. We'd love to hear eyewitness accounts, the history behind an article.