JACKSON — “The little school with a big heart” is eyeing expansion plans that would pave the way for an in-house preschool at Jackson Grammar School.
The Jackson School Board will hold a public hearing on its 2022-23 warrant in the Whitney Center on Feb. 3 at 6 p.m.
kAm~?6 2CE:4=6 E96 3@2C5 3C@F89E 7@CH2C5 D66<D Sad_[___ E@ DEF5J 2? 6IA2?D:@? 2E E96 D49@@=[ H9:49 4FCC6?E=J 9@FD6D <:?56C82CE6? E9C@F89 D:IE9 8C256]k^Am
kAm“xE’D D665 >@?6J[ 2D @AA@D65 E@ 3F586E:?8 E96 H9@=6 2>@F?E[” v6?? p?K2=5:[ 492:C @7 E96 y24<D@? 3@2C5[ D2:5 3J A9@?6 (65?6D52J] “(6 <?@H E92E 3F:=5:?8 >2E6C:2=D 2C6 E9C@F89 E96 C@@7 C:89E ?@H] (6’C6 36:?8 >:?57F= @7 E96 64@?@>J[” D96 D2:5]k^Am
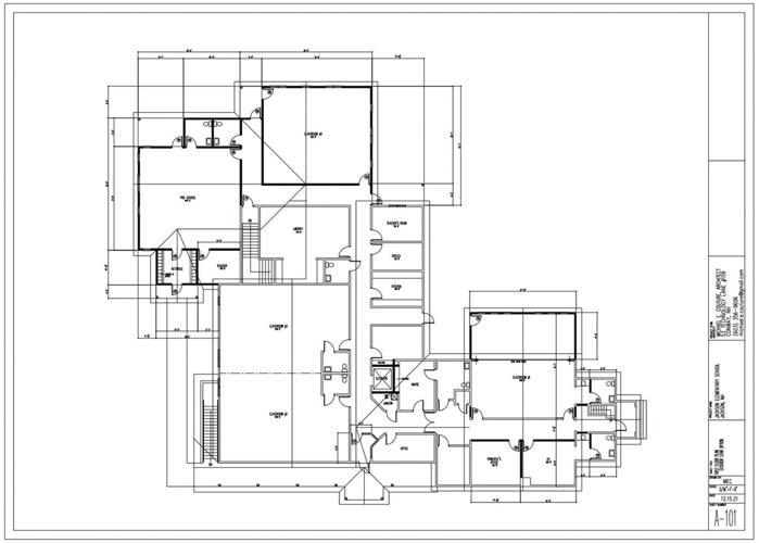
kAm$FA6C:?E6?56?E z6G:? #:492C5 E@=5 E96 $F? @? %F6D52J E92E y24<D@? 2AAC@G65 2 Sf_[___ H2CC2?E 2CE:4=6 =2DE J62C 7@C 2? 2C49:E64EFC2= DEF5J @7 E96 8C2>>2C D49@@=]k^Am
kAm“%96J 5:5 2 ?665D 2DD6DD>6?E 2?5 @?6 @7 E96 BF6DE:@?D E92E 42>6 FA H2D 4@F=5 E96 32D6>6?E 36 FD65 W2D A@DD:3=6 4=2DDC@@> DA246X[” 96 D2:5[ ?@E:?8 E92E E96 3@2C5 56E6C>:?65 E96 ?665 7@C 2 AC6D49@@= 4=2DDC@@>]k^Am
kAm#:492C5 D2:5 E92E =65 E@ E96 4C62E:@? @7 E96 Sad_[___ H2CC2?E 2CE:4=6]k^Am
kAmsC27E >:?FE6D 7C@> E96 3@2C5’D y2?] `g >66E:?8 DE2E6i “(6 H:== 36 2D<:?8 7@C 2 Sad_[___ H2CC2?E 2CE:4=6 E@ 3C:?8 E96 C6?@G2E:@?D E@ E96 ?6IE =6G6=[ 2?5 AC6A2C6 E96> 7@C 3:5]”k^Am
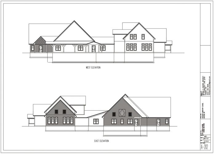
kAmp44@C5:?8 E@ s646>36C >:?FE6D[ “2C49:E64EFC2= A=2?D W@7 E96 AC@A@D65 6IA2?D:@?X 92G6 366? C646:G65] x?:E:2= 4@DE 6DE:>2E6 =2DE J62C H2D S` >:==:@? 2?5 2 Sd__[___ 4@?E:?86?4J] r@DED 92G6 5@F3=65[ H6 2C6 ?@H =@@<:?8 2E Sa >:==:@? A=FD 4@?E:?86?4J] |C] Wy6CCJX s@F896CEJ W3@2C5 >6>36CX C64@>>6?5D >66E:?8 H:E9 E96 D6=64E>6? E@ 5:D4FDD E9:D 2?5 ?@E AFEE:?8 E9:D @? E96 H2CC2?E E9:D J62C]k^Am
kAm“|@?6J 4@F=5 36 AFE :?E@ E96 @A6C2E:?8 3F586E 7@C 7FCE96C 6?8:?66C:?8 WD@7E 4@DEDX] |C] Wy:>X w:== W@7 $p& hX DF886DE65 FD:?8 2 H2CC2?E 2CE:4=6 7@C 2 3F:=5:?8 C6D6CG6] %96C6 :D Sgh[___ :? E96 >2:?E6?2?46 ECFDE 7@C DA64:2= AC@;64ED] #6G:6H E96 =2?8F286 E@ D66 :7 2?J @7 E92E >@?6J 42? 36 FD65 7@C 56D:8?] %96 D6=64E>6? 2?5 E96 D49@@= 3@2C5 D9@F=5 92G6 2 ;@:?E DF34@>>:EE66 E@ C6G:6H 42A:E2= @FE=2J] p Sad_[___ H2CC2?E :D 4@?D:56C65] |C] #:492C5 H:== 5C27E 2? 2CE:4=6 7@C Sad_[___ E92E 42? 36 FD65 7@C 56D:8? 2?5^@C 4@?DECF4E:@?[ :? 2 D6A2C2E6 ECFDE 7F?5]”k^Am
kAm%96 2CE:4=6[ }@] e @? E96 H2CC2?E[ C625Di “%@ D66 :7 E96 D49@@= 5:DEC:4E H:== G@E6 E@ 6DE23=:D9 2 y24<D@? vC2>>2C $49@@= C6?@G2E:@? 2?5 4@?DECF4E:@? 42A:E2= C6D6CG6 7F?5 F?56C E96 AC@G:D:@?D @7 #$p bdi` 7@C E96 A=2??:?8[ 56D:8?[ 4@?DECF4E:@?[ C6?@G2E:@? @7 E96 y24<D@? vC2>>2C $49@@= 2?5 E@ C2:D6 2?5 2AAC@AC:2E6 E96 DF> @7 Sad_[___ E@ 36 A=2465 :? E9:D 7F?5] uFCE96C[ E@ ?2>6 E96 y24<D@? $49@@= s:DEC:4E 2D 286?ED E@ 6IA6?5 7C@> D2:5 7F?5] #64@>>6?52E:@?D C6BF:C65] W>2;@C:EJ G@E6 C6BF:C65X]”k^Am
kAm%96 2CE:4=6 H2D DFAA@CE65 c\_ Ws@F896CEJ[ z2E6 u@FC?:6C[ |2;<2 qFC92C5E 2?5 s2C=6?6 u6C6?46j p?K2=5: H2D F?23=6 E@ 2EE6?5 E96 >66E:?8X]k^Am
kAm#:492C5 D2:5 :7 2 AC6D49@@= H6C6 25565[ E96 6IA6?D6 @7 255:E:@?2= DE277 H@F=5 36 @? E@A @7 4@?DECF4E:@? 4@DED]k^Am
kAmpE E96 3@2C5’D y2?] `g >66E:?8[ 2C49:E64E |:<6 r@FEFC6 82G6 2 AC6D6?E2E:@?[ 27E6C >66E:?8 H:E9 DE277 2?5 72>:=J >6>36CD E@ 82E96C :?AFE] p?K2=5: D2:5 5:D4FDD:@?D @7 2? 6IA2?D:@? 92G6 366? @?8@:?8 7@C EH@ J62CD] p 4@FA=6 @7 E96 4=2DDC@@>D H@F=5 ?@E 36 FA E@ DE2E6 DE2?52C5D :7 E96J H6C6 E@ 36 6IA2?565]k^Am
kAm“(6 E9@F89E 23@FE 3C:?8:?8 2? 2CE:4=6 7@CH2C5 =2DE J62C[ 3FE H6 76=E H6 D9@F=5 H2:E 2?@E96C J62C E@ 36 7:D42==J C6DA@?D:3=6[” p?K2=5: D2:5]k^Am
kAm$96 25565i “(6’C6 9@A:?8 2D 2 3@2C5 E@ 86E >@C6 4@>>F?:EJ 5:D4FDD:@? W2E E96 3F586E 962C:?8 ?6IE H66<X] (6 H2?E E@ >2<6 DFC6 6G6CJ@?6 :D 2H2C6 @7 H92E H6’C6 ECJ:?8 E@ 5@]”k^Am
kAm%96 =2DE 255:E:@? E@ E96 D49@@= H2D :? E96 a__g\_h D49@@= J62C H96? @77:46 DA246 2?5 DA246 7@C E96 =:3C2CJ H2D 4C62E65] %96 (9:E?6J r6?E6C ?6IE\5@@C H2D 3F:=E E96 J62C 27E6C — D@>6E9:?8 E96 D49@@= 92D 366? 23=6 E@ FD6 5FC:?8 D49@@= 9@FCD]k^Am
kAmx? a_``[ E@ 82:? J6E >@C6 DA246[ E96C6 H2D 2 H2CC2?E 2CE:4=6 E@ C6=@42E6 E96 =:3C2CJ E@ E96 32D6>6?E 2?5 FD6 E92E DA246 7@C 4=2DDC@@>D[ 3FE E96 G@E6 6?565 :? 2 E:6 2?5 E9FD 72:=65]k^Am
kAmy24<D@? 4FCC6?E=J 92D 2? 6?C@==6>6?E @7 ;FDE D9J @7 d_ DEF56?ED]k^Am
kAm!C:?4:A2= v2J=6 s6>3@HD<: 92D DFAA@CE65 2 AC6D49@@= D:?46 D96 2?5 E96?\y@D:29 q2CE=6EE t=6>6?E2CJ $49@@= !C:?4:A2= y@6 '@4: 7=@2E65 E96 :562 :? a_`c]k^Am
kAm“%96 @C:8:?2= AC@A@D2= H2D E@ D92C6 2 AC6D49@@= H:E9 q2CE=6EE[” s6>3@HD<: D2:5 (65?6D52J] “y24<D@? C6D:56?ED H2?E65 E@ <66A E96:C <:55@D 4=@D6 E@ 9@>6] x 42? F?56CDE2?5 E92E 3642FD6 :E H@F=5 92G6 >62?E E96> 8@:?8 E@ q2CE=6EE 7@C 2 J62C @7 AC6D49@@= 2?5 E96? 4@>:?8 324< 96C6 7@C z\e]”k^Am
kAm&?:G6CD2= AC6\z :D D@>6E9:?8 E96 q:56? 25>:?:DEC2E:@? 9@A6D E@ >2<6 2 C62=:EJ] x7 E92E 92AA6?D[ y24<D@? H2?ED E@ 36 C625J]k^Am
kAm“x7 H6 42? 4@>3:?6 @FC b\ 2?5 c\J62C @=5D[ H6 H@F=5 36 =@@<:?8 2E D:I E@ `_ DEF56?ED[” D2:5 s6>3@HD<:] “(6 H@F=5?’E 36 23=6 E@ 9@FD6 2 AC6D49@@= H:E9@FE 5@:?8 D@>6 C64@?7:8FC:?8 WH:E9 2? 255:E:@?X]”k^Am
kAmrFCC6?E=J[ A=2?D 5@ ?@E :?4=F56 FD:?8 E96 32D6>6?E 7@C 255:E:@?2= 4=2DD DA246 3642FD6 :? E92E 6G6?E 2? 6=6G2E@C H@F=5 36 C6BF:C65 E@ >66E p>6C:42?D H:E9 s:D23:=:E:6D p4E C6BF:C6>6?ED]k^Am
kAmx? a__b[ G@E6CD 2AAC@G65 2 S`_d[___ H2CC2?E 2CE:4=6 E@ C6?@G2E6 E96 32D6>6?E @7 E96 D49@@= 7@C 255:E:@?2= :?DECF4E:@?2= DA246[ H:E9 Sg_[___ 4@>:?8 7C@> E96 D49@@= 3F:=5:?8 >2:?E6?2?46 7F?5 2?5 E96 32=2?46 E@ 36 C2:D65 3J E2I6D]k^Am
kAm%96?\3@2C5 >6>36C q@3 %9@>AD@? D2:5 E96 ?665 7@C 255:E:@?2= DA246 H2D C64@8?:K65 :? `hhg[ 2?5 G@E6CD D6E 2D:56 S`d[___ 2 J62C H9:=6 @77:4:2=D 42>6 FA H:E9 2 3F:=5:?8 A=2?]k^Am
kAm#6?@G2E:?8 E96 32D6>6?E[ 96 D2:5[ H@F=5 4C62E6 `[e__ DBF2C6 766E E@ 36 FD65 7@C 2CE 2?5 >FD:4[ H9:49 2C6 ?@H E2F89E :? E96 >F=E:AFCA@D6 C@@>] %92E C@@> H@F=5 36 3C@<6? :?E@ 4F3:4=6D E@ 36 FD65 7@C DA64:2= 65F42E:@? :?DECF4E:@?]k^Am
kAm%9@>AD@? D2:5 C6?@G2E:?8 E96 32D6>6?E 2AA62C65 >@C6 AC24E:42= 2?5 64@?@>:42= E92? E96 @E96C @AE:@?D — 42CG:?8 @FE DA246 :? E96 2EE:4 @C :?DE2==:?8 2 A@CE23=6 4=2DDC@@>] xE H2D =2E6C 6DE:>2E65 E92E 4FEE:?8 :?E@ E96 C@@7 ECFDD6D E@ 4C62E6 D64@?5\DE@CJ DA246 H@F=5 4@DE Sbd_[___ 2?5 J:6=5 23@FE c__ DBF2C6 766E @7 FD23=6 DA246] p A@CE23=6 H2D 566>65 F?2446AE23=6]k^Am

(0) comments
Welcome to the discussion.
Log In
Keep it Clean. Please avoid obscene, vulgar, lewd, racist or sexually-oriented language.
PLEASE TURN OFF YOUR CAPS LOCK.
Don't Threaten. Threats of harming another person will not be tolerated.
Be Truthful. Don't knowingly lie about anyone or anything.
Be Nice. No racism, sexism or any sort of -ism that is degrading to another person.
Be Proactive. Use the 'Report' link on each comment to let us know of abusive posts.
Share with Us. We'd love to hear eyewitness accounts, the history behind an article.